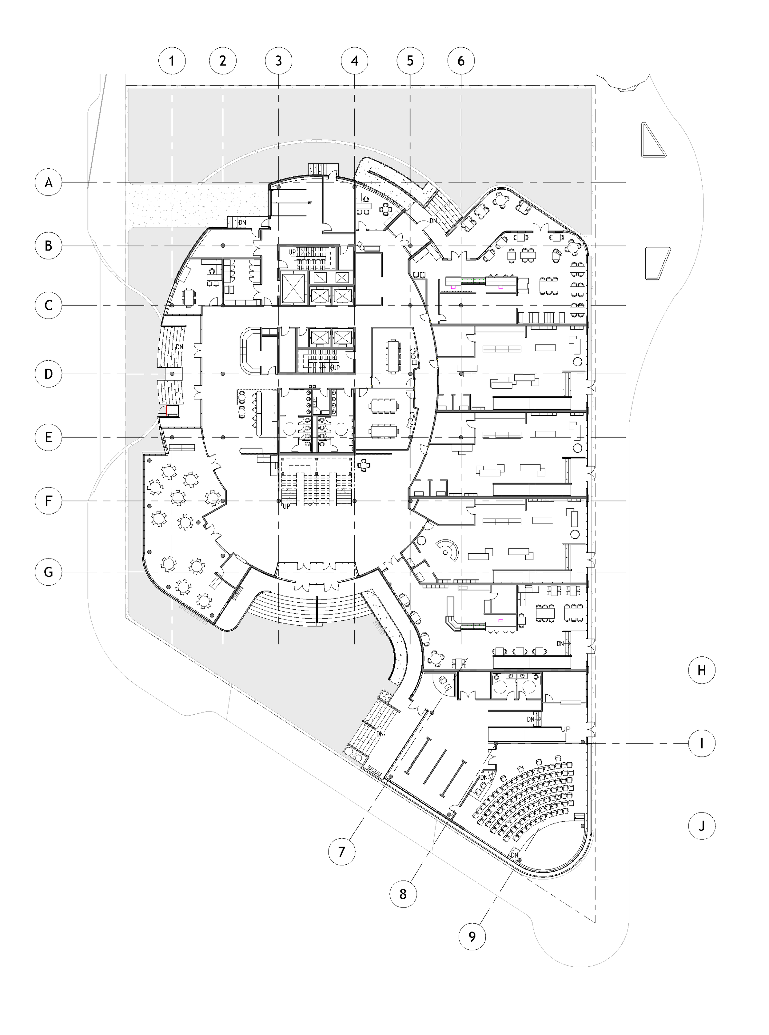
96 S. Grove
Envision Elgin

ARC 452 SPR 2025 Prof. Luis Fernando Nunez & Prof. John Loritsch

Project Statement
96 S. Grove introduces a new landmark to downtown Elgin, designed to balance high-energy urban life with essential community infrastructure. By integrating housing, business incubators, and community outreach services, the building serves as a functional anchor for the city’s evolving future. The design is guided by a commitment to local resilience; "Materials don’t fly first class" dictates a sustainable, regionally sourced palette, while the philosophy to "Mend cracks; don’t create them" ensures the ground floor remains a porous, inviting space for the public. Through precise proportions and a refined white-light facade, the tower reflects the vibrant spirit of Elgin without losing its grounded, community-focused purpose.