C.U.R.E
Center for Urban River Ecology

ARC 352 SPR 2024 Prof. Sean Gallagher

Project Statement
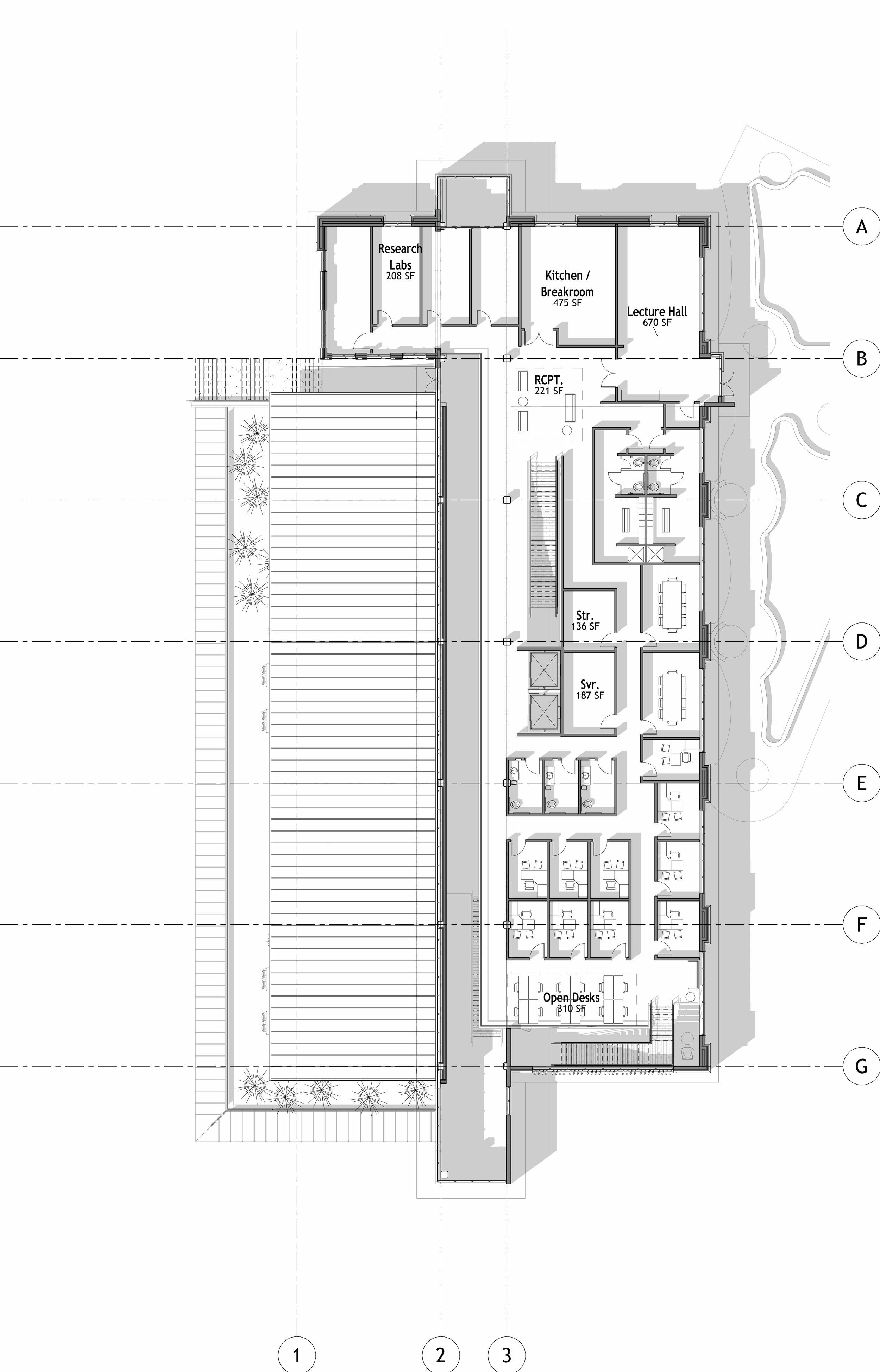
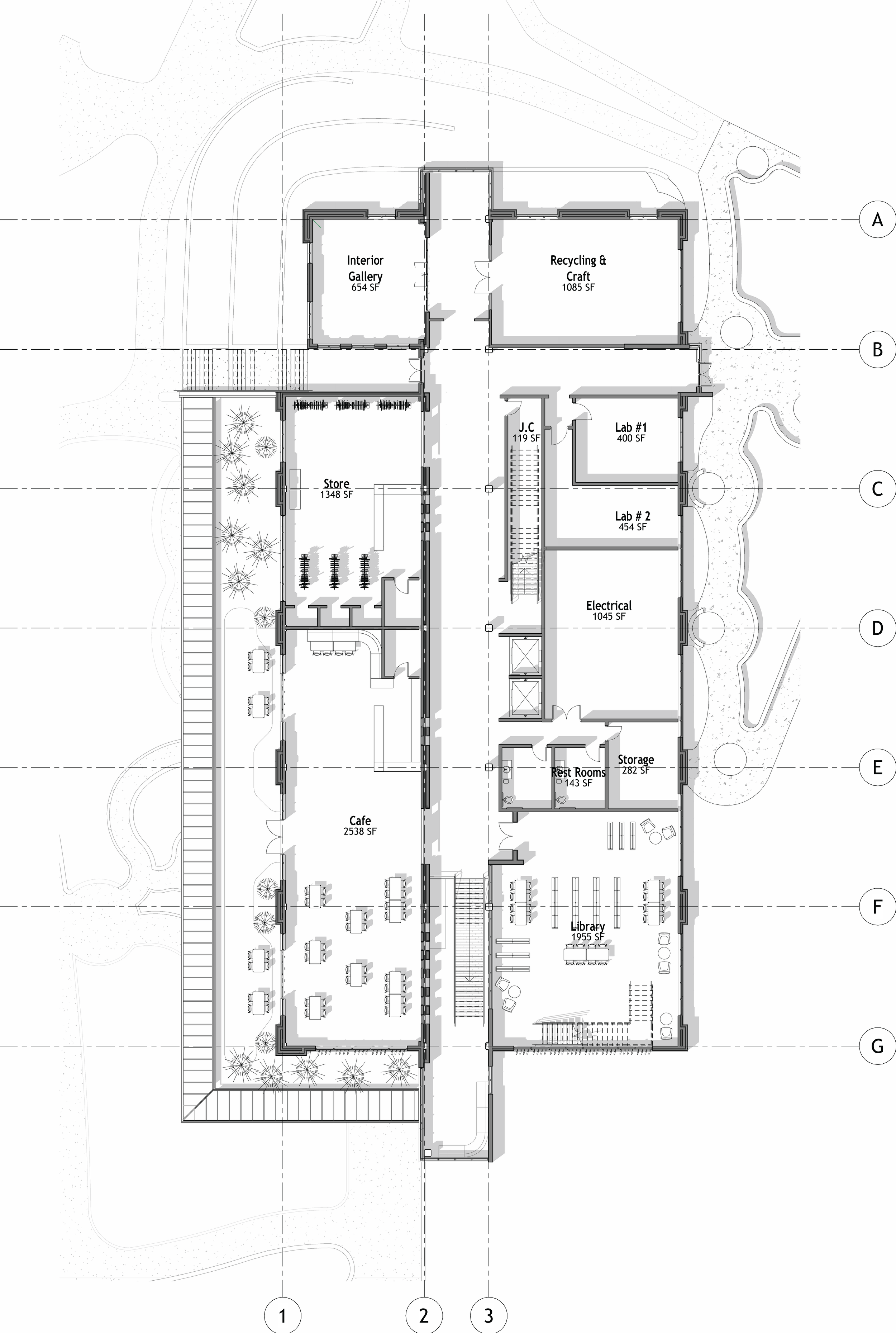
Kane County, in partnership with the City of Geneva, the Center for Urban River Ecology (C.U.R.E.) is a civic hub dedicated to the study and public stewardship of the Fox River watershed. The facility serves as a functional instrument for research, demonstrating how ecologically sensitive systems, riverine habitats and urban watersheds, can be seamlessly integrated into the dense urban fabric of Geneva, IL. C.U.R.E. is designed not only to house research, but to embody it.

Design Intent
The architectural response pursues Net-Zero operational performance through a “fabric-first” strategy. By aligning the primary massing with the river’s edge, the design optimizes orientation for passive solar gain via an expansive Trombe wall. This passive thermal engine is supported by a geothermal loop and integrated photovoltaic arrays, creating a theoretical closed-loop energy system. The result is a facility that functions as a living laboratory, where sustainable technology and urban ecology converge.


Bioclimatic Design Strategy
My design focuses on an integrated approach to bioclimatic architecture, utilizing a “stack” of passive and active strategies to achieve near net-zero performance. By orienting the primary massing toward the southwest, the building balances renewable energy generation from the photovoltaic array with the use of deep overhangs and sunshades to mitigate intense solar heat gain, particularly on the western facade. This orientation allows the structure to capture peak afternoon solar energy while the physical shading devices prevent the interior from reaching uncomfortable thermal levels during the hottest parts of the day.

Internally, the design leverages high thermal mass through a southwest-facing Trombe wall, which stores solar energy during the day and radiates it into the interior at night. This works in conjunction with a multi-story ventilation atrium that promotes the “stack effect,” naturally flushing hot air out of the building to reduce cooling loads. Finally, the building taps into the earth’s stable temperature via an earth-coupling foundation, providing a thermal baseline that pre-cools the structure in summer and buffers it against the cold in winter to further minimize mechanical reliance.