The Reading Nest - Chicago, IL
Goose Island Supportive Housing & Library

ARC 651 FALL 2025 Prof. Dan Hussey

Project Statement
The redevelopment of the North Branch Industrial Corridor is transforming Chicago’s industrial spine into a dense residential district. Mega-developments such as Lincoln Yards and Halsted Pointe are set to introduce over 5,000 new residential units to this area. However, this growth is defined by a critical imbalance, the infrastructure of commerce is being built, but the infrastructure of community is missing.

Currently, there is no public library, community center, or non-commercial “Third Place” on Goose Island. For the thousands of new residents, and the vulnerable populations displaced by this rapid gentrification, the area risks becoming a bland, exclusionary space. This project proposes a necessary corrective, a hybrid Supportive Housing and Public Library model that anchors the island with civic presence, ensuring that Goose Island becomes a true neighborhood rather than just a collection of high-rise towers.


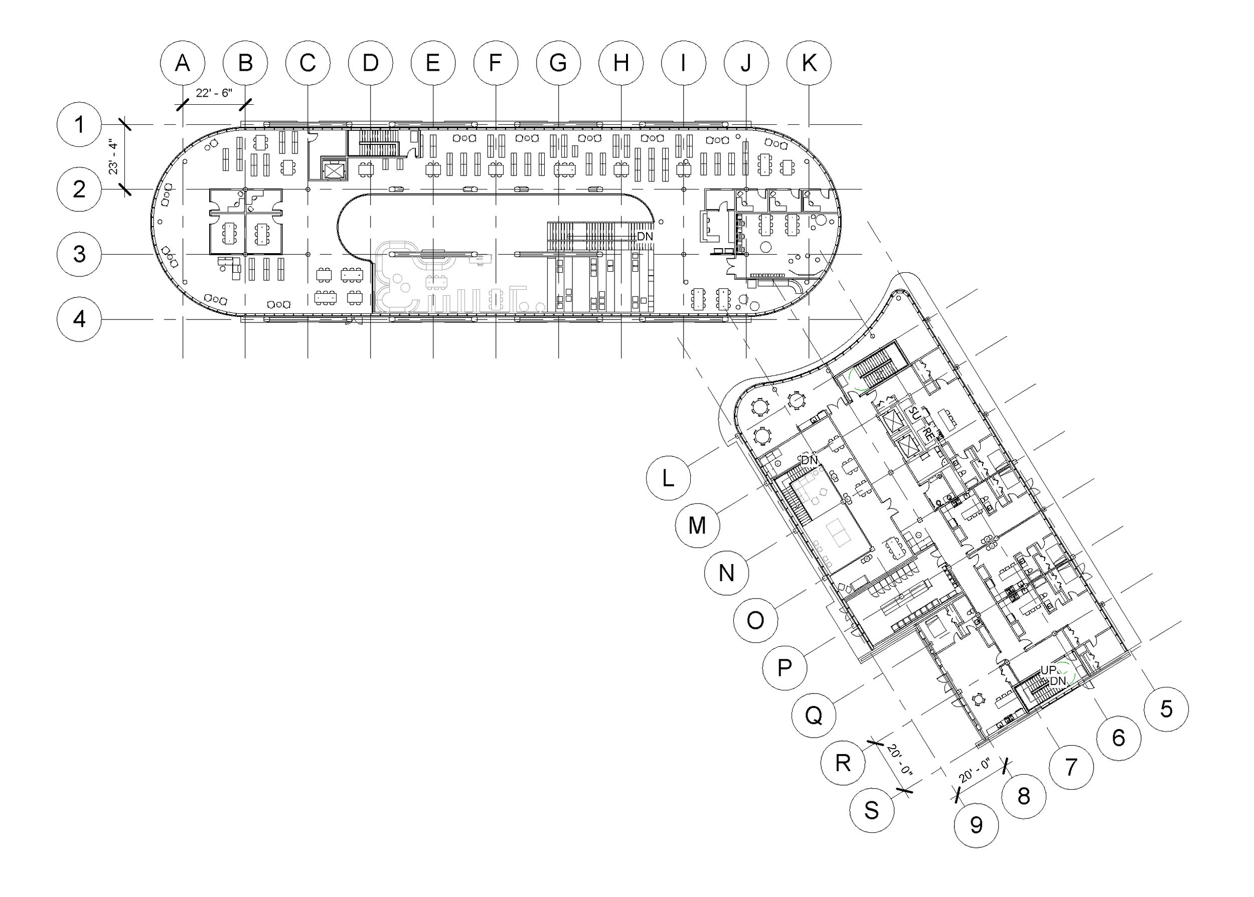
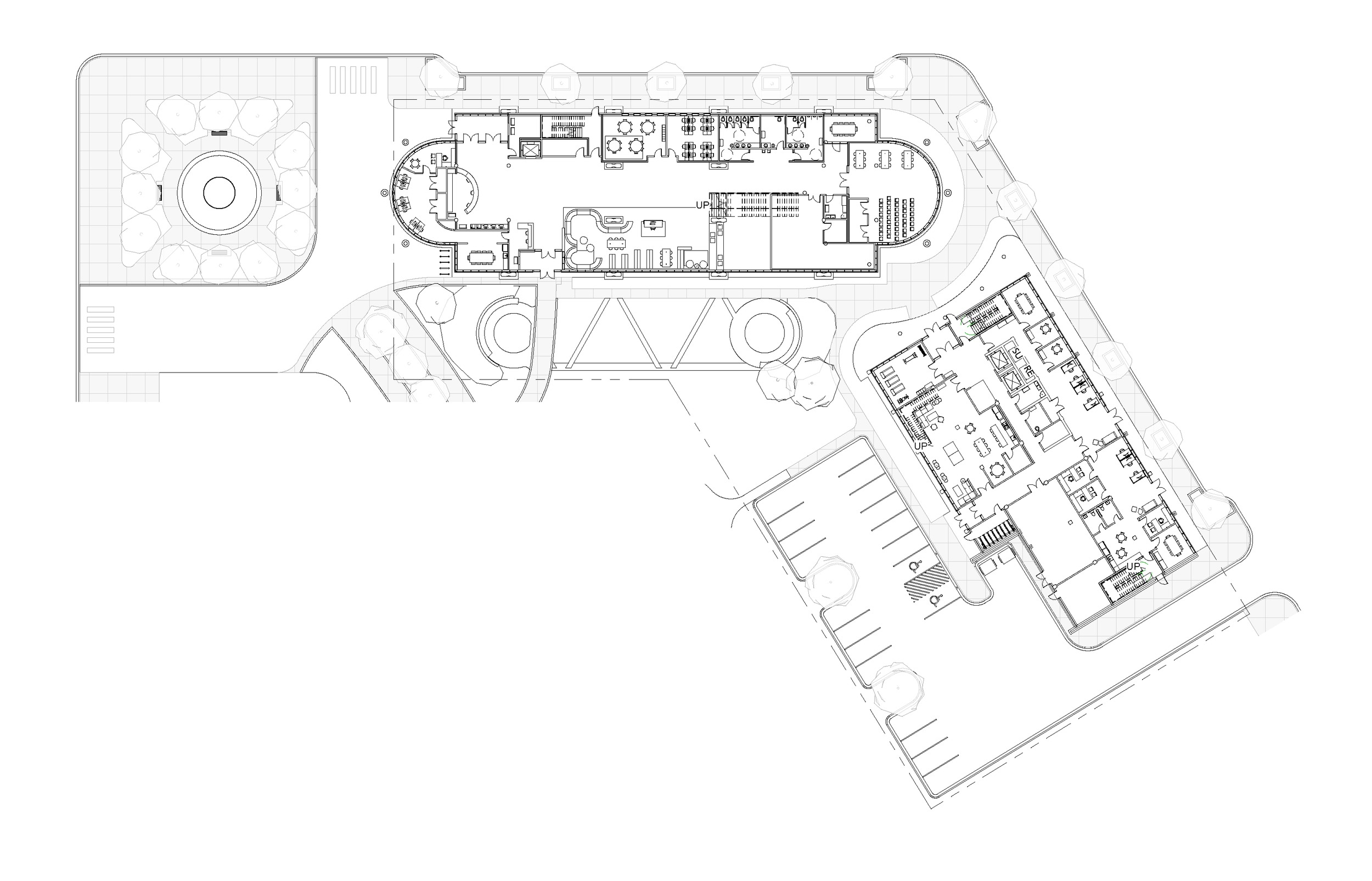
Site Design | Book-End Sanctuary
The building massing acts as a strategic “book-end” anchor, framing a protected park while maintaining an axis parallel to the urban grid. This orientation creates a functional hierarchy: northern elevations offer expansive views of the green space, while southern facades maximize solar gain for naturally lit interiors. The result balances urban density with environmental wellness, separating active street edges from a reflective interior sanctuary.

Overall Building Numbers
Master Site Development - 15 Acres (65,000 SQ’)
Reading Nest Footprint - 27,350 SQ’
Library SQ’ - 26,350 SQ’
Housing SQ’ - 79,850 SQ’

55 Total Housing Units
(42) - 1 Bedrooms | 1 Bath
(13) - 2 Bedrooms | 1 Bath